| Sign In | Join Free | My carsrow.com |
|
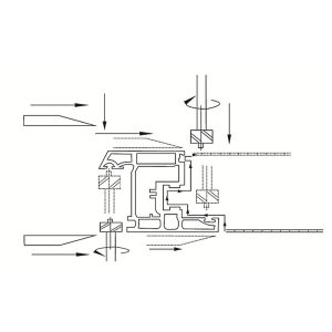
Features: 1. Most stable welcomed mature CNC corner cleaning machine. 2. Totally 5 cutters will be automatically cleaning surface, vertical and inside rubber Gasket groove. No need tool change. 3. ...